2017 _ Seoul, South Korea _ 158,000ft2/ 15,800m2_in collaboration with Hou de Sousa - 2nd place in international design competition, S. Korea Ministry of Culture
The National Museum of World Writing in Songdo pairs two conditions at odds with one another. The first is the purpose of the Museum: exploring the ancient universality of human communication in written form. The second is its site: the city of Songdo, built in the past decade on a tabula rasa of reclaimed land. Our proposal for the Museum addresses these opposites, creating a container for the study and exposition of writing as an ancient manifestation of culture in a city whose culture is so new as to be undefined. In the process, we are writing this new city’s culture through architecture.
Our strategy addresses these conditions by proposing a form evocative of the very thing Songdo lacks: a history. But rather than employ stereotypical historic architectural forms, we looked for the places where the fundamentals of writing and architecture overlap - solid to void relationships, the trace of gesture on surface, the meaning in the depth of a mark, penetration, or extrusion. And we expressed these on the tabula rasa of the site, cutting into the surface with abstractions of these formal elements. The result is a museum one discovers as if by accident, revealed in the earth as an archaeological site, its repeated modular geometries evocative of the ancient Cuneiform writing system of marks cut into a flat clay surface.
Rather than a singular building, the museum reads as a below-grade, unearthed village. Two levels down, visitors circulate on open-air plazas that connect the program components. The components are contained in a ring of circulation and support systems that is entirely below grade. The village components themselves are composed of 7mx7mx5m modules, each of which has a carved void element. These carved elements are inspired by typographic maneuvers shared by all writing systems. The result is a “roof” that is actually a ground plane of unexpected openings and penetrations that encourage investigation and discovery. Additionally, the voids of each module serve as light wells, clerestories, and small courtyards while simultaneously providing a means of partitioning spaces. It should be noted that as a design strategy, this porous modular system is highly reconfigurable and can be tailored to the specific needs of each program. Our proposal reflects just one arrangement of nearly infinite possibilities.
This design addresses several criteria of the brief in unique ways. The public can wander into the museum alleyways and open pubic program - the store, cafe, restaurant, and research library - without ever having to go into the museum itself. The roof functions as an element of the park, so no open area is lost, and views of the park are maintained. The iconic form of the museum becomes defined by its voids, rather than its solids, this makes a distinctive reading both at the street level, and from high elevations, such as the surrounding skyscrapers and Google Earth. Indeed, from above the museum is utterly unique, reading as a massive abstract hashtag.
Finally, the sub-grade character of the building allows for numerous sustainability features. Substantive efficiencies are to be gained environmentally by taking advantage of the thermal mass of the surrounding earth and the green roof above, minimizing the need for the high powered mechanical systems needed in museum and archival settings. Rainwater is captured within the roof and runoff is channelled into water features within the alleyways below. Finally, the alleyways and repeated penetrations allow for sufficient daylighting through all critical program areas.
2017_unbuilt installation_Belfast, Northern Ireland
LOOM is a proposal for a temporary installation in Belfast, Northern Ireland. Loom's ambition is to encourage speculation about the next generation of post-industrial relics, by conceptually drawing on past moments of industry while creating a singular environmental experience.
above: Linen "bleachgreens", circa 1870
The twin gantry cranes Sampson and Goliath are functional icons of Belfast’s once-dominant shipbuilding industry. They stand over thirty stories tall, looming over the Harland and Wolff shipyard and one of the world’s largest dry-docks. They are taller and broader than any building in Belfast. The cranes are symbols of Belfast’s urban identity. Although they are an official landmark, their continued existence beyond their current use is not certain.
The gantry cranes are rarely commissioned to work on a large vessel, rather they can spend months, sometimes years, sitting unused. The dormant cranes frame a unique, massive void.
“Loom” reworks that void with a hanging lattice, descending to the surface below in a half-catenary curve that is moored to the earth by a living garden. The lattice is designed to be easily removed and reinstalled in the event of a commission, and the garden below is positioned at the far end of the Harland and Wolff shipyards, an area little used and closest to the new residential and commercial development known as the Titanic Quarter.
The lattice is composed of strips of woven, jute, erosion-control fabric. These are anchored by mounds of earth seeded in alternating rows with yellow-flowering rape-seed and blue-flowering flax, two crops that evoke Northern Ireland’s transformation from a rural to industrial economy through linen and seed oils. Over the course of the installation these colorful crops will blend into an undulating field. The colors of this field are distinctly non-sectarian, in a city where specific colors - green, red, blue and orange - can evoke anxiety and emotion, the blue and yellow of Loom embrace Belfast’s new civic identity.
Belfast is a city in rebirth after decades of sectarian strife. In recent years, the city has worked to reconstitute urban spaces, soften barriers that once separated antagonists, and create a new civic iconography. Some of these efforts have been effective, others have been viewed with skepticism. The gantry cranes Sampson and Goliath are universally considered symbols of the city. This is a post-conflict development. The collective understanding of what these cranes represent was not driven by a developer’s initiative or publicity campaign. The cranes are neutral territory, they are accidental icons that speak to the strength of Belfast without sectarian divides.
Numbers:
Aggregate and Soil: 110m x 50m x 3m = 16,500m3 (360ft x 165ft x 9.8ft = 582,000ft3)
486ft3 per truckload= 1197 truckloads
Woven jute erosion control fiber 2.45m (8ft) wide: (23) x130m lengths = 2,990m (3 kilometers, 1.4 miles)
Open spiral strand stainless steel cable = 150m
77kilograms of seed
2018 _ Sakaka, Saudi Arabia _ 47,781ft2/ 4,439m2_in collaboration with Hou de Sousa - unbuilt competition entry, Abdulrahman Al Sudairy Cultural Centre
Three critical transformations drive the architectural renewal of the Dar Al-Uloum Library, Sakaka, Saudi Arabia. First, the liberalization of segregation between genders in the Kingdom of Saudi Arabia creates a need for a gender integrated library that is spatially fluid, open and transparent, where all users are comfortable and have multiple options for individual and collective study and reflection. Second, changing environmental and economic dynamics require that new additions to the built environment anticipate changes in climate and resource availability. The new library must take full advantage of the desert’s environment and material palette to be resource efficient. Finally, as the Kingdom of Saudi Arabia evolves and new economies and industries flourish, the library must be a place where citizens can educate themselves to participate in the next wave of technological and informational innovation.
Our library begins by acknowledging it’s predecessor and setting out in a new direction. Using the existing structural skeleton as an armature and the existing floor plates as datums, we expand outward with a new volume that is rotated to align with the cardinal compass points. This provides a new relationship to the neighboring mosque and creates efficiencies for our environmental strategies, detailed below.
Next we overlay an organizing pattern that establishes solid and void relationships within the library, creating a unique dynamic of transparency and opacity, connection and separation. This pattern is driven by several inputs. Solar chimney towers on the roof project down into the floors below, defining the boundaries of library functions and the location of openings between levels. Rather than a conventional hierarchy of spaces, the interior of the new library is a playful weave of volumes, surfaces and openings that allows for passive visual - and in some places acoustic- connection across boundaries, creating a sense of solidarity and safety where users can work in studious isolation or collective creation. This pattern functions to democratize the space, allowing what urbanist Jane Jacobs called an “eyes on the street” effect, where aggregations of users create their own safety.
The pattern of solid to void relationships established by the solar chimney towers on the interior are also legible on the exterior. As the gently scalloped rammed-earth walls rise, solar chimneys abutting the envelope are revealed. The resulting geometry is evocative of ageless settlement- building techniques found throughout the Arabian Peninsula and Levant, but deployed in a completely new way.
The new library anticipates a future of total gender integration. To phase in integration, the design calls for limited areas of exclusive use by women, but these are part of the overall pattern language and thus easily transformable into shared spaces in the near future. Areas with this designation include spaces that share some visual connection with the rest of the library, but can function autonomously.
The new library combines a system of solar chimneys with a ground source heat sink to substantially reduce the load on the mechanical cooling system. While the solar chimneys are a legible component of the overall design, the ground source heat sink sits discretely below the surface of the gardens to the west north west of the main building. Air is drawn into the system through inlets distributed throughout the garden that capture the prevailing northwest breezes and are augmented by fans. The air passes through serpentine ducts buried at an optimal level beneath the garden surface to capture the cooling e ect of the packed earth. This pre-cooled air passes through the reduced-size mechanical cooling system from where it is drawn into the main body of the library where the stack effect of the solar chimneys augments the mechanical flow. This heat sink and solar chimney system, while labor intensive to build, minimizes mechanical equipment footprint and expense and is economical to operate.
The solar chimneys also provide the bulk of daylighting within the library. Diffuse daylight from above offsets the substantially opaque rammed-earth envelope wrapping the library. Through the use of rammed earth to clad the building, and the reuse of the existing structural skeleton, as well as the redeployment of the original stone cladding of the existing library as both floor and wall elements throughout, our proposal for the new Dar Al-Uloum Library includes significant economical strategies while also creating an innovative and original work of architecture.
2016_in progress_Washington DC_1600ft2
Archotus is redesigning this two-story townhouse to optimize function through all stages of a family's evolution. This requires turning the house upside down.
Currently, the townhouse is divided into two separate units on two floors, each with its own HVAC, water and electric meters, and entrances. The client wanted to return the townhouse to a traditional single-family configuration, with a parlor floor downstairs and bedrooms up. We proposed something different. Rather than give up the second unit and lose the potential for rental income, we dedicated the back 1/3rd of the first floor to an autonomous efficiency apartment that can also be used as a large bedroom, or a mother-in-law suite, or a temperamental teen-ager hideout, or a crash pad for a jobless post-college returnee. An accommodation for all potential changes in the life of a family, and perhaps AirBnB.
To do this, the living space is brought to the second floor where there is the potential for loft-style living: open plan, more light, higher ceilings, and more privacy. Downstairs the efficiency gets its own entrance off the alley, and the door between the efficiency and the main space can be readily accessible or sealed, depending on the family's needs at any given time.
2015-16_competition design_art installation-project management_Washington, DC
Archotus started this project as consultant to The Dupont Underground, an arts organization that is reactivating an abandoned streetcar station in Washington DC to support and exhibit contemporary arts practice. As the project developed we stepped into a more formal role at Dupont Underground, directing the organization as it opened its doors to the public for the first time.
Re-ball! was an open design competition that asked entrants to repurpose 650,000 plastic balls, from the National Building Museum’s 2015 Beach installation by Snarkitecture, using the balls to create an installation in a portion of the Dupont Underground’s 75,000ft2 platforms and tunnels.
In March 2016, we gathered a jury of internationally recognized artists, designers and curators to chose a winning proposal from ninety-three entries representing nineteen different nations. New York-based design studio Hou de Sousa took the honors. Their proposal, Raise/Raze, was based on a single simple move: create uniform, modular blocks from the balls, and use these blocks to build structures and environments that the visitor could interact with and alter as they desired.
Raise/Raze was executed on a limited budget, in a limited time frame. It transformed the chaos of the Beach’s giant ball pit into the structured play of a sandbox. Most importantly, Raise/Raze also gave Dupont Underground multiple opportunities to engage its community and its audience, and refine its mission and identity. The installation opened April 30th, 2016, and sold out its entire one month run in two days.
In addition to creating and running the competition, Archotus was project manager for the installation buildout and exhibition. In six weeks, over 1400 volunteers passed through the venue to help build the installation.
The Underground comprises 75,000ft2 (7,500m2) of raw, un-redeveloped space, less than a mile from the White House. It lies beneath Dupont Circle, at the nexus of Washington DC’s cultural, civic, and commercial life. There is no other space like it in the Washington. With Raise/Raze, Dupont Underground established its mission to bring contemporary arts programming to the District that might not be an easy fit in more conventional venues.
You can take yourself on a 3D walk-through of the installation here. And here is some press we've received thus far...
“Underneath Dupont Circle: a playground for democracy” – Washington Post
Raise/Raze opening in the media: CBS, ABC, Washington Post…
Dupont Underground on the Kojo Nnamdi blog.
1800ft2, Washington DC, Phase one complete, 2015
Best Foot Backward -
As a building typology, the townhouse suffers from front-back schizophrenia. Some have a street-centric presence, front porches and stoops that encourage hanging about. Others are socially awkward up front but have interesting interior lives, and, ideally, private space in the back that makes up for the inability to relate up front.
These differences reflect the social prerogatives of the time they were built. Our townhouse project in the Adams Morgan neighborhood of Washington DC is a perfect example of the introverted townhouse. It was built in 1978, in the midst of the Carter Administration, when Washington DC was the murder capital of the nation and the city was in the final throes of post-war white-flight.
Our townhouse was built in a moment of optimism, part of a program to provide new housing stock in neighborhoods where the people who could afford new homes were looking for them in leafy suburbs. It was a townhouse built to compete with the cul-de-sac rambler. Despite its central urban location, its first priority was the car. It’s second priority was security, and its third priority was, well, a sunken living room.
With its one car garage dominating the front facade, and predicable, derivatively historicist fenestration, the townhouse has an uninviting street presence. On the first floor, a dark, narrow kitchen divided the sunken living room from a quasi-formal dining area; on the second floor tiny bathrooms were hemmed in by unnecessarily large circulation space. Everywhere, residual Victorian notions of the division of space based on divisions of gender and labor were fighting hard with 1970s Free To Be You and Me.
Yanking this property into a more contemporary mode took several steps. Our first was to blow the kitchen open. Walls on the ground floor needed to do more than just divide things. We used millwork storage blocks to delineate spaces and create continuity from front to back.
Eventually the street presence and rear yard will need to be addressed, but that will be in future phases.
Above: exploded axonometric showing interior renovation strategies. Below: before renovation
2015_competition entry_Winnipeg, CA
Sacrif(ice) is a proposal for a seasonal installation in Winnipeg, Manitoba. Colloquially known as "Winterpeg" for its extreme cold, Winnipeg has experienced warmer and warmer winters, as climate change accelerates.
This installation references Manitoba’s climatic and geographic history and projects forward to offer a physical document of present and future climate change.
Glacier (accelerated)... Beneath a minimal temple structure a large block of ice receives the traces of day-to-day changes in temperature, incrementally transformed by drips from vessels above. Over the course of the winter installation the Sacrif(ice) ice block thaws and reforms, with saline rose water staining, deforming, and impregnating its surface.
Welcome to the Anthropocene, Vitruvius.
The structure draws from an ancient architectural typology: the temple as primative hut, an enclosing device to denote a place of shelter and worship. This hut reflects its environment, its four columns and lintels disappearing, mirroring the sky, the snow, and the installation's visitors; reminding those who pass of their own role in the sacrifice.
The stages of Lake Agassiz, from 16,000BCY to 11,000BCY, showing drainage paths and events.
Forgotten Topographies... 11,000 years ago, Winnipeg sat at the bottom of glacial Lake Agassiz, along with a large portion of the central North American continent. Over 4000 years Agassiz’s extents fluctuated as the surrounding ice sheets melted and reformed. At various points the Lake burst its boundaries, sending rivers of fresh water into the oceans, in the process sculpting valleys and rivers, altering sea level and salinity, and effecting climate world-wide. In addition to the geologic and paleoclimatic evidence of this, we have anthropologic evidence in the form of flood mythologies found in cultures throughout the world.
Sacri(fice) provides an accelerated encounter with glacial change, encouraging reflection on the acceleration of climate change provoked by human actions.
Water and Salt... Over three-hundred clear plastic vessels hang in rows between the lintels, exposed to the sun and elements. The vessels contain a saline rose water solution, fed by a bladder system supported within the lintels. Rose water is chosen to evoke the scent of a warmer season and latitude, its coloring contrasts with the ice block. Bottles at the periphery are pure water, thaw begins at 0˚C. Working inward, the rose water solution in the bottles becomes more saline, in the center thaw begins at -18˚C. The daily temperature shift, cloud cover, and sun angle dictate the amount and location of saline drip onto the ice block below, melting, or building up its surface and staining it magenta. UV rays further degrade the block, creating pinholes that will receive the magenta stain.
Day-by-day extents of dripping on the top surface of the ice block for the month of February for years 2011-2015, in response to temperature shifts shown below.
The Sacrif(ice) installation is recurring, with each year’s ice block cored and stored for display the following year. The cores become a unique record of climatic changes over the course of years, each core containing different degrees of melt, freeze and stain.
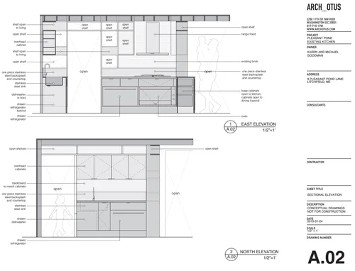
2015_in progress_Litchfield, ME., 800ft2
In the 1920s, the small towns in an inland lake district in central Maine began dividing parcels of land into small "camps" to attract distant urbanites to invest in inexpensive vacation homes. Aggregations of camps were known as "colonies". At Pleasant Pond land use restrictions were minimal; many camps were built on or over the water, raised up on stilts. Many were built close together, with no setback requirements.
The property on Pleasant Pond Lane includes a camp dating from the original colony. The property has been in the same family for 75 years, its narrow boomerang shape is almost unbuildable by today's zoning restrictions. The family desires a small, winterized, self-sufficient house, in contrast to the uninsulated summer-use-only camp on the property's waterfront.
The proposed house is situated at the highpoint of the site to maximize views and allow the roof solar array to sit above the surrounding forest. The 800 square foot house coincidentally mirrors the site's boomerang shape, to maximize the efficiency of the solar panels year-round and create a gently enclosed private zone on the south exposure. The northern facades will be partially under grade where the hill peaks out, this minimizes the vis-a-vis with a neighboring house and improves envelope efficiency to make up for the home's less-than thermally ideal long, narrow shape. On the interior, the opposing ends will contain adult and children's bedrooms, with living space in the middle, centered on a wood burning stove.
The first phase of the project includes a redesign of the kitchen in the existing camp. The tiny kitchen has two walls that separate it from the larger living areas. These function as sheer walls. The design maintains the structural function of these walls much as a honeycomb has structure, by converting them to built-in storage "boxes", while opening them up to the space beyond.
"Non-Standard" studio, Fall 2009, with David Adjaye, Teresita Fernandez and Marc McQuade. This project is also published in David Adjaye, Authoring: re-placing art and architecture; Lars Muller Publishers, 2012
The Gowanus Canal is a sewer. It has always been and will always be a sewer, by the simple fact of its geography. The Gowanus lies at the bottom of a bowl. The sides of this bowl are referred to by the New York City Department of Environmental Protection as the Gowanus “sewershed”. As a pre-industrial swamp the Gowanus was a sewer and as an industrial canal it is a sewer.
The sewer system as it was laid out over the years uses the Gowanus Canal as a receiver of last resort. When surrounding sewers are overloaded they flow into the Gowanus. This happens on average 30-50 times a year. No amount of Super Fund remediation will alter this.
Variations on a “soft” remediation strategy have been proposed, whereby the Gowanus is returned to some degree of its pre-industrial state as a swamp. I would argue that, in fact, the Gowanus Canal is a case for a “hard” strategy of total remediation, based on the intractabe nature of its geographic position.
This hard strategy takes advantage of the immanent post-Superfund moment -when the canal is drained and dredged to place a canal beneath the canal, a sub-infrastructure. The surface level canal would, in essence, be “double –bagged”, contained in an impermeable lining, while the sub canal would receive the Combined Sewer Outflow (CSO) and surface runoff through an enveloping filtration substrate that culminates at outlets that flow into the subsurface-canal. The canal, as it exists, is the sum of low intensity moments. Apart from the waterway itself, there is no outstanding objector location that defines the experience of the canal and its surrounds. It is a series of repeated underwhelming moments that collectively produce a sublime effect that is very much dependent on the weather and the viewer’s state of mind.
In the infrastructure I propose there are opportunities for architectural insertions that can serve as higher intensity, experiential, and incidentally pedagogic moments. By creating pathways and occupiable spaces that dramatically reveal and merge the doubling infrastructure, creating places of heightened awareness and communication with the canal itself. The toxic past, and consumptive present are revealed in the catch-basins and leaching zones along the sub-canal route; and chambers at the bottom of aeration voids offer a unique simultaneously subterranean and subaquatic experience
Occupying these spaces is subject to the natural ebb and flow of the canal, which overflows into the subcanal at high tide. On the surface the project is revealed in voids; underground by a designed spelunking. The Gowanus Canal becomes occupiable in a new way, its water is again the water of New York Bay, not tainted by the toxic runoff of the industrial past; yet its essence, and its primary role as infrastructure is unaltered.
Inspired by the collective atavism known as “placebo drift” - the increasing effectiveness of placebos in medical studies - this project seeks an updated approach to historic rituals of health and beauty as generators of physiological and psychological manipulations of space and atmosphere.
Such an update requires an integration of our collective sublimation of science and technology, but equally a reassessment of the natural and artificial while drawing on well-embedded cultural notions of the elements of health. If placebos are many times more effective today than they were 30 years ago and the therapeutic effect of simply “going through the motions” of the modern ritual of health care delivery is the most likely explanation for placebo drift, then this phenomenon underlines our cultural conditioning to respond to given stimulus with collectively shared physiological and psychological feedback. We share this response with cultures and moments in history we would consider to be less developed than our own.
The Placebo Drift is a barge tethered to and surrounded by a deployable island sited on the Manhattan waterfront, accessible by launch.. As counterpoint to the typical frenetic New York health club, this project offers a speculative, slow health ritual, that is dependant on an output of time rather than effort (or money). The barge is conceptually divided into three levels, each devoted to an element traditionally associated with preventative health therapies: water, air and light. Striating these elements indulges our assumption that reordering nature prescriptively bears physiological and psychological effects, both stimulatory and ameliorative, emphasizing basic human environmental responses.
[1] http://www.npr.org/templates/transcript/transcript.php?storyId=124367058
Above: A matrix of architectural strategies that have been used, historically, in the name of improving health - or at least ameliorating conditions in a context of recovery. Modernist principles drawn from late Victorian notions of the virtues of light and air generate spatial, ameliorative strategies. Opposing this are physiological and psychological reactive strategies – rooted in Foucault’s notion of a “coefficient of adversity”. Examples include Arakawa and Gins Biocleave house: designed to throw the body off balance, under the assumption that the physiological response to conditions that challenge the occupant is tonic and restorative. To the same effect, yet coming from an opposing theoretical standpoint is Philippe Rahm, who works under the premise that there is no real line between architecture and the body. His strategies include maniulating atmospheres, including using artificial means to generate physiological effects, a strategy that evokes the modernist mountain top sanitorium, although in the 1920s the hypoxic effects of altitude were not yet known. This matrix lays out these strategies that might be incorporated or rejected.
The barge hull is one large pool divided into soft-sided pools fed by water that circulates through a roof top solar bladder, heating the smaller soft-sided pools, they expand and contract with temperature of water. The stations of the water level introduce the constituent to contrast therapy, of going from one extreme to another, the organizing principle of the barge and fundamental to the idea of placebo as having clinical effect.
The air zone is the void between the hull of the barge and the volume above. Floating on the surface of the pool are several occupiable spheres that seal upon entry. The air oxygen saturation in the sphere increases and decreases in prescribed waves, creating endocrinal effects of hypoxia and hypobaria. Upon completion of the prescribed course, the occupants "roll" their sphere into position under the retractable claw that elevates the sphere to the light level.
The top level is one large volume under 12 oculi that manipulate natural light either as colimators, refracting light down to its constituent wavelegnths and filtering a specific zone, or as fresnels, intensifying daylight properties, or blocking them out completely. The space can then be divided into seperate zones each with its own light quality, or function as a whole volume. The facade is equally regulable, comprising rotating three sided verticle louvers., that augment the quality of light desired on the interior, either blocking all natural light, providing full specturm artificial light, or opening up to the exterior. These rotating banks of full spectrum florescents can have the effect of the effect of providing maximum daylight 24 hours a day, as light therapy for shift change and seasonal affective disorder, regardless of time of day. They also provide a constantly changing surface as the visual identity of the barge.
___________________________________________
Elements of Craig Cook's Masters thesis Spring 2010, Princeton University School of Architecture. The project remains a work in progress, informed by ongoing encounters with the medical industrial complex.
Advisors: Jane Harrison, Liz Diller
Much thanks to final review assistants:
Ang Li, Phoebe Springstubb, Jaffer Kolb, Chris Hillyard, Chris Oliver, Sonya Chao
2015_in progress_San Francisco, CA_900ft2
SixFoot20 specializes in fusing street foods from different cultures. Currentlyoperating from a utility tricycle equipped with a hot plate and ice box, the laundromat at 439 Duboce Avenue in San Francisco will be SixFoot20’s first bricks-and-mortar location.
We wish to bring the street into the restaurant and architecturally express the hybridized nature of the menu through materials and layers. As much as is allowable by San Francisco’s historic overlay restrictions, we will open the facade. Sometime in the past 25 years, the laundromat’s classic recessed vitrine storefront was replaced with fixed plexiglass panels. We will maintain the same proportions but replace the vitrine with vertical bifold windows. Benches in front of the windows will double as steps, patrons do not have to enter through the door, they can climb through the window onto a continuous linear “stoop” that wraps in front of the service counter. The stoop will replace conventional seating.
SixFoot20’s menu not only hybridizes cultures - east and west, north and south - it challenges notions of slow and fast food. Menus are created daily based on the availability of ingredients. Items are cooked to order, and served in paper. Spatially the restaurant will blend expectations of fast and slow, it will feel provisional, but also encourage a desire to linger.
With no budget for expensive materials, we will be repurposing the remains of the laundromat. Broken washers and dryers will be parted out for paneling formwork, and we are currently figuring out how to convert a clothes dryer into a coffee roaster…
The World Tower project identifies what building envelope shapes perform best in different climates within the confines of the tower typology. This project was created with Carrie Norman (now of Norman Kelley) and Craig Cook for Alejandro Zaera-Polo's first Princeton Envelope Group studio at the Princeton University School of Architecture, Spring 2009.
In the dichotomy of “field” and “figure”, the tower is the consummate “figure”, its autonomy is a product of its stature, its expressiveness is dependant on its singularity and its objectness. Yet it is still grounded to a field whose forces can be rejected or embraced. The tower, both due to its inherent figural qualities as well as the economic and political regimes that have historically served as its “patron”, tends to reject the field conditions of its locality, opposing or ignoring the generative opportunities locality offers.
Our project backs up and takes a global run at the local, taking the worldwide “field” of climate, and setting parameters for introducing a figure -“the tower”- that responds to local conditions.
At this level of resolution an initial prototype for each condition can be proposed that will become more and more customized and singular with each new, added layer of information. Each level of resolution reveals latent forces, but the forces are universal, so each tower becomes localized but also remains connected to the field, genetically the same, but “nurtured” into an individual expression. Thus the forms that dominate the atlas, the multitude of primitives and their initial regime of shape changing, can be seen as pre-tower zygotes, expressing baseline conditions.
We begin by defining the field from which the tower is derived. At this level of resolution we command a broad pixel of 3x3 degrees of latitude and longitude. Each pixel is defined by its position and the dominant biome within its scope.
This is registered using the Koppen climate classification system, which breaks down biomes into climate zones based on temperature, humidity, and seasonal dynamics, whether a winter is cold or rainy, whether a summer is wet or dry, or whether there are any seasonal variations at all.
Our first order of investigation was to establish whether conventional assumptions concerning the thermal performance of surface area to volume ratios hold up to scrutiny. We ran simple extruded envelopes containing a given volume through environmental analysis software and concluded that, as might be expected, the circle with its low surface area to volume ratio out-performed other shapes in extreme climates.
The percentages in the graph above represent the amount of loss or gain through the envelope with all other factors (material, insulation, fenestration) zeroed out. The ideal here is the closer to zero the less the transmittance, both losses and gains are represented. Thus, in milder climates the losses and gains due to shape have limited consequence, while in extreme climates shape impacts thermal performance.
Our second evaluation expands on this by introducing corrugation to the primitives, transforming their shape along vectors that maintain their radiality and isomorphism. We reanalyzed the primitives with increasing degrees of corrugation and established a coefficient to drive a parametric model. This coefficient was derived from the proportion of thermal transmittance, losses and gains, attributable to envelope shape, after zeroing out all other factors. Corrugation was then deployed by climate zone and latitude based on their performance trend. The corrugation is expressed in both amplitude – the size of each individual corrugation- and frequency – the number of corrugations.
Note that the triangle is driven only by amplitude with no increase in frequency. This is because the triangle and square become almost identical when they are doubly corrugated, and our interest in exploring the thermal dynamics of these shapes was better served by attenuating one or the other. So the condition of the triangle and square as developed are exchangeable, the square could become a cross with super-attenuated limbs, as the triangle becomes a tripod. Whether this transformation happens with amplitude or frequency or both, the surface to floor area ratios remain constant in each stage. Either condition sets up different dynamics regarding solar incidence and cross ventilation, both of which are apparent in our thermal analysis. This could imply a hybrid of large amplitude corrugation along with frequent smaller corrugations, a condition that is seen in residence towers in southern latitudes.
So, looking at the examples above, the level of corrugation in a cold climate is minimized. Moscow, for example, is represented by only one shape that deviates just a small bit from a conventional circle, whereas Hong Kong’s mild climate makes the performance factors of each shape negligible, so all three are represented there, with the corrugation derived for their climate. The final result from this stage was a distribution of shapes establishing a precondition for a prototypology for each climate zone.
Next we looked at the direct solar incidence on each zygote variation as a function of latitude. A shading coefficient is generated, represented on the atlas as a “shadow”, the length of the shadow indicating the coefficient. Closer analysis of representative zygotes is developed in the individual city “zoom ins”, as watt-hours of energy impacting each exposed surface. This layer of information can eventually generate future fenestration and shade strategies.
The resulting proto-shapes generated by these steps serve as a basis for further localization as new information is loaded into the analysis and the form zeros in. We maintain the zygotic character of the tower at this point but offer a next level of resolution by introducing fenestration to the shape. This necessarily requires the assumption of a z dimension, absent until now, which we have put at four meters. Fenestration to facade ratios were tested from .2 to 1.
Fenestration analysis was limited to specific cities representing each macroclimate zone: Moscow, Hong Kong, Dubai, and Kuala Lumpur, the polar climate zone was left out because there are no cities in polar zones. The analysis was based on degree hours above or below an established comfort zone for each version of the zygote prescribed for each location. This analysis confirmed the robustness of our initial deployment but it also developed further implications for the shape of the tower, which only at this stage begins to express a post-zygotic form. Wrapping fenestration with a priority on the north and south sides of the shape and expanding in a gradation to the east and west, offers clues as to optimal orientation as well as the degree and direction of solar opacity vs. transparency. For example a protrusion or attenuation that expands to the south while shrinking to the north may boost performance in a tower at a high latitude, while an equatorial tower would be better served by bilateral symmetry with an emphasis on the north and south.
Further localization is developed in our final study of orientations based on, not just climate type and latitude, but on continental vs. coastal patterns. This study does not read on the larger atlas but offers a potential next step for further resolution beyond the 3x3 latitude and longitude pixel. At this next level the proposition would develop beyond the radial symmetry of these zygotes, and other forces, such as wind, view sheds, and footprint limitations would be introduced as x and y become attenuated and z begins to be specified. Each of these elements further hones the tower into a local expression of universal forces.
In developing this process certain assumptions and exclusions were necessary. We eliminated orientation from the initial forms both to keep the zygotes as elemental as possible and thus symmetrical. Ideal orientation varies not just by latitude but by microclimate, these subtle changes have big impact on thermal performance, implications better off expressed as the tower is localized. We have started to assess the ways this might develop in our fenestration analysis.
We have also chosen to exclude any notion of program in setting up the problem, mainly because we wished to address the most elemental forces and thus the widest view. In the priorities of our approach, program is one of the most localized and so one of very last generative forces to be applied to the tower. This prioritization is fundamental to our approach in which we flip the typical generative order.
So in closing, our project is by no means proposing a world of towers that are simple extrusions of a catalog of shapes. Rather we are proposing a starting point that reverses the priorities of tower design. Rather than a display of capital, either as icon or efficiency, our tower takes the most fundamental and universal site conditions as the basis for design, as these site conditions zero in the tower becomes more unique even as its generative forces remain the same. The tower becomes a localized statement derived from a regime of natural forces instead of a regime of politics and economics.